钢水脱气用机械真空泵的最新发展
对比了钢水脱气工艺使用的干式机械真空泵和蒸汽喷射泵的特点,结果表明,干式机械真空泵在脱气的质量以及泵和配套的除尘系统、气体冷却系统的可靠性方面有明显优势;标准化真空泵可以使制造成本相对更低,标准化的预组装模块式系统不仅在安装和调试方面降低了成本,而且结构更为紧凑,更加节能、节水。
钢水脱气工艺使用的干式机械真空泵及其相对于蒸汽喷射泵的优点已经在真空技术网(http://www.chvacuum.com/)有了多方面的研究报道。技术的进步不仅体现在使用这些泵脱气的钢水量和它们在世界各地的普及程度上,而且体现在达到的质量水平以及泵和配套的除尘系统和气体冷却系统的可靠性方面。有些工厂使用这类泵已有20多年,但没有对转子进行过任何维修,没有更换过任何轴承,只是在10000h后才更换齿轮箱油,过去10年间也没有更换过滤筒。
不过,其他工厂却由于过滤器设计不当、滤筒无自动清理功能和灰尘去除方式不当等出现了问题。
另外,未净化气体阀门并不总是能够经受住未净化的高温废气中高速灰尘颗粒的磨损作用,因而会失去严密性,导致过滤器出现问题。
有些泵级之间的水/气换热器会在使用若干年后发生泄漏,必须进行更换。有些工厂报告说,转子和马达之间的弹性联轴器存在着磨损现象。
有鉴于此,真空泵供应商采取了相关措施,努力使泵系统(包括灰尘处理)更可靠、更经济、更紧凑,以便它们在将来也能用于从150t到350t的超大钢水量。迄今为止,它们主要用于从30t到130t的较小炉容,只有少数例外能够达到230t———在一套RH 系统中。
过去20年间所取得的进展如下:
1)使用低成本的变频器,这样有助于减少泵的型号数量,减少压力级数,使一种型号的泵适合所有国家和所有工艺步骤,节约效果十分明显。
2)使用内部压缩比很高的干式主泵,比如爪式泵、多级3叶罗茨泵和螺杆泵。用这些干式泵取代油封式旋转叶片泵和旋转活塞泵有很多优点,因为它们能够在相同的抽气能力下达到更低的压力,运行更安静,振动更小,重量更轻,结构更紧凑,几乎免维护。事实上,现代螺杆泵不需要任何外置油过滤器,也不需要大量换油(比如,每台叶片泵每3周换油多达70L),排出的废气中根本不含油。
3)本文给出了配备水冷高速电机泵的开发。
如今,钢水真空脱气使用的泵组全部是干式螺杆泵,以变量泵作主泵,以2~4级罗茨泵作增压泵。所有泵级通常都采用变频控制。
1、投资成本的情况
尽管没有哪一种真空泵是专为钢水脱气的目的而开发的,但事实已经证明,为其他应用(比如涂镀、干燥、化工和太阳能)而开发的真空泵可以成功地用于钢水脱气。
表1列出了多家供应商推出的典型真空泵。该表并没有全面列举所有供应商和所有泵的型号,主要是没有包括许多中型罗茨泵和所有的预冷却罗茨泵。
表1 钢水脱气用主泵和增压泵的主要类型

泵的成本在很大程度上取决于它们的产量和销售量。如果按照单位抽气能力来衡量的话[欧元/(m3/h)],大批量生产的小型泵很可能比按照订单生产的钢水脱气用大型泵更为便宜。
图1描述了这种情况。图中比较了一些传统罗茨增压泵和一种配有水冷高转速电机的罗茨泵(WH7000)[12]按照欧元/(m3/h)来衡量的单位成本与它们的年产量之间的关系。
从该图可以看出两个影响价格的趋势:
1)规格趋势表明,由于材料和人力成本较低,大型泵比抽气能力相同的小型泵便宜。
2)产量趋势表明,增大产量可以因为降低了总成本而降低制造成本。
很显然,无论是何种用途,每年生产1000~2000台泵一定比产量非常有限的泵便宜,即使后者的规格要大的多。

图1 泵的规格和产量对单位成本的影响
OLV WH7000、AM 15.11HV、AM 16.13HV、AM 17.15HV、AM 18.17HV、AM 19.19HV、AM20.21HV的有效抽气能力(m3/h)及其最大工作频率(Hz)分别为:7500、70;7500、60;12500、78;16500、63;27000、50;40000、40;80000、32。
由于能力的原因,钢水脱气设备需要多级泵系统。有些供应商提供预组装3级泵组,其他供应商则不这样做。
图1给出了泵所有组件的成本和多级组装过程中的运输和安装费用。
如果对完成安装和测试的整套泵组进行比较,根据具体组成情况将换热器、阀、变频器、管路(真空和液体)、电缆和支承结构等全部包括在内,那么,产量大的泵所具有的成本优势甚至会比图1所示的更为明显。
除了上述单位成本优势,产量大的小型泵还有供货周期更短、售后服务更快的特点。
2、方案
欧瑞康莱宝真空设备公司(OLV)选择了它所生产的两种成熟的泵进行组合:DV1200螺杆泵和一种很小但速度很快的WH7000罗茨泵。3级系统只使用了这两种泵。其他供应商试图借鉴这种作法,甚至使用更大的泵。
3、泵和电机的组合
除了上述重要的低成本因素,还应当强调指出其他优点:OLV泵新设计的一个根本特点是采用了无电刷和不打火的封闭式水冷电机,如图2所示。该示意图展示了传统的泵设计和采用封闭式电机的新设计之间的主要区别。

(a)传统的罗次泵设计; (b)创新的封闭式设计。
图2 传统和新型泵-电机组合示意图
这种新型泵和电机组合的优点十分明显:
1)轴承、油室和电机的水冷使其相对于传统的罗茨泵增大了压缩比,从而能够以3级配置达到极低的压力。不需要级间换热器。
2)不再需要轴封以便同大气隔离,因此,泵的可靠性和坚固性大幅度提高。在间歇式工艺中,它们可以在任何真空压力下启动。
3)转子和电机之间不再需要易磨损的弹性联轴器。变频控制的电机与转子轴直接组装在一起,以一种非常平稳和可控的方式使泵提速。这种一体式设计使泵的结构极其紧凑,而且密封效果极佳。
4)不再有电机电刷触点打火现象。
5)不再使用电机轴承。
6)由于电机进行了水冷却,可以在较高的电流密度和较宽的频率范围(包括非常低的频率)内运行。
4、标准化的模块式配置
将泵安装在一个两层支架上,就得到了模块式配置的泵组。
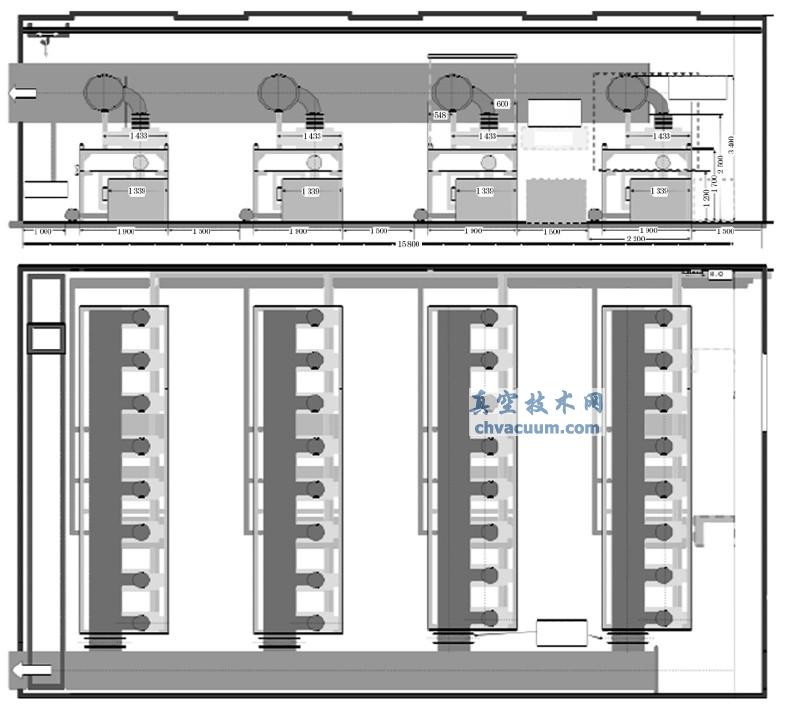
用于45t炉容的一种6-2-2配置的标准化泵组描述如下:
1)第1级包括两台DV1200泵,安装在位于地面的滚轮上。
2)第2级的两台WH7000罗茨泵安装在同样位于地面的一个滚轮架上。这两级在支架下方移动,像洗衣机那样通过快速接头连接。
3)第3级包括6台与第2级完全相同的WH7000罗茨泵。它们安装在上层支架上,经同一根共用集管连接在一起。
这种6-2-2配置的标准化泵组如图3所示。

图3 俄罗斯BVK/Chelyabinsk一套35tVOD设备上安装的能力为45000m3/h的6-2-2模块式泵组(长5.5m,宽2.2m,高3.5m)
进水/出水、吹扫气体、控制电缆和数据传输电缆等所有连接均已组装在支架内部的端子上。由于在抽真空或吹氧阶段没有任何泵级需要预冷却或旁通,管路连接非常简单。
这种模块式泵组已经在制造厂完成了预组装和测试,包括快速连接步骤。
专门开发的WH7000罗茨泵具有出色的自冷却能力,加上冷却水的优化使用、压力的分级和平稳的抽真空操作,这种模块式泵组不需要任何级间换热器,即使在VOD、VD-OB或RH-OB等工艺的吹氧阶段气流强度大和不限制吹氧量的情况下也不需要。
由于采用了水冷电机,这种泵组可以在很宽的频率范围内(包括极低频率)大电流运行。再加上转子惯量小,泵组尤其适用于压降控制或在恒流量下运行。
预组装的6-2-2泵组适合放置在一个20英尺开顶集装箱内,可以采用任何运输方式。第一和第二级、安装在电气盘中的罗茨泵快速接头、填充油和泵组支架的支腿则放置在另一个集装箱中。它们在现场的最终组装和连接只需数小时即可完成。
这种模块既可以提供泵数较少的轻型配置(5-1-1或4-1-1),以后可以方便地扩充;也可以提供泵数更多的升级配置(7-2-2到8-2-3)。
模块的所有配置均只使用两种不同的泵,简化了备件管理,降低了备件库存成本。
5、高和超高的抽气能力
高抽气能力需要并行配置多个模块。
一套4模块8-2-2配置的组合系统能够达到225000m3/h(小于100Pa)的有效抽气能力,冗余能力为4×25%。各个模块之间由一只DN800翻板阀隔开。
如此大的能力对于200t钢水来说完全能够满足需要。
对不同供应商提供的泵组在能源、介质和占用空间等方面进行了比较,见表2。
4模块8-2-2配置的示意图见图4。
6、工艺的适用性
该系统对于所有类型的真空冶金工艺均适用,包括常见的镇静钢RH、VD和VID工艺,非镇静钢VCD工艺,低合金钢VD-OB和RH-OB强制脱碳工艺,高铬合金钢在钢包或转炉内的VOD/VODC脱碳工艺,以及真空铸锭(VIT)工艺(由于该工艺在低于33Pa的压力下进行,因而效果十分理想)。
OLV系统在废气中富含一氧化碳、二氧化碳或氩气的情况下也适用。泵壳能够承受1MPa压力的冲击。在所选泵型的开发过程中,在恶劣的使用条件下进行了耐久性试验。还进行了碰撞试验,目的是确认即使在转子卡住的情况下泵壳也不会损坏。
目前已提供的13套OLV模块式系统大多数也用于VOD工艺(表3)。
所有泵都符合各个项目的当地安全规定,在关键的吹氧阶段也没有对任何泵级采取旁通措施。
如果客户要求,可提供与ATEX相当的证书。
7、灰尘和蒸气的处理
性能出色的所选泵组是真正的干式真空系统,避免了湿气和硫蒸气凝结,而且自动向外排出灰尘(金属蒸气凝结物)。另外,水和油都无需过滤。
不过,任何机械泵都需要配备可靠的气体冷却、除尘和排灰系统,以保护其免受过多灰尘和高温气体的影响。通常采用织物过滤器,而有些工艺则除了织物过滤器以外还配备旋风除尘器和气体冷却器,目标是确保泵组入口处的含尘量一定少于10mg/m3,温度一定低于50℃。
在设计合理的系统中,这些配套设施不会使要求真空室达到的有效抽气能力出现明显降低。
表2 不同配置高效泵组的性能


图4 4模块8-2-2配置(225000m3/h)示意图

表3 OLV提供的最新钢水脱气设备清单
8、自动化
监控能够保证安全和优化的运行条件。自动化涵盖了变频器和模块内的所有电气装置。根据要求,还可以扩展到整个真空处理过程,包括灰尘过滤器的布袋清理和排灰操作、隔离阀、真空室及其盖板等配件。
泵的转子和电极具有小的质量惯性,所以泵组更适用于压降控制或恒定体积流量操作。不同启动点的抽真空模式、抽真空速度的显著延迟以及VOD模式存储在标准程序里,不需要额外的硬件。操作者通过按钮可以瞬时降低全部或几个泵级的频率。
一个阶段每个模块使用大量的泵自然就很多余。在4-1-2型模块里,短的管路连接失效时,可以加单个中级泵进行分流。在这种情况下,泵组作为2级系统工作,大约是满负荷2/3的工作量。
在一个或两个并行模块中,每阶段至少有2个泵,所有的泵可以通过瓣阀自动隔离。
对3个或更多的模块,因为每个模块可以通过模块组的主阀关闭,从而节约了这些隔离阀。
在所有情况下,泵组持续自动地降低容量。
9、结语
在钢水脱气应用中,机械真空泵相对于蒸汽喷射泵的优势十分明显。而且,标准化真空泵的制造成本也更低,已在钢水脱气和其他真空应用中得到工业化验证的小型真空泵的高产量为此提供了保证。
泵和电机组合的一种新设计带来了维修、耐磨损和安全性方面的优点。
一种标准化的预组装模块式系统在安装和调试方面进一步降低了成本。与传统的机械泵组相比,这种先进的方案不仅结构更为紧凑,而且更加节能节水。
通过并行布置多个集成式模块,能够达到极高的抽气能力。
这使得VD、RH 和VIT工艺对于大量和超大量钢水的处理也可以考虑使用机械泵。
这种系统适合所有类型的真空工艺,主要是因为它适合需要采取一些安全措施的吹氧工艺。
该设计也具有防尘和监控可能产生酸液的湿度功能。
泵的质量惯性较小,因而在频率调节控制抽真空时,可以进行快速转换。
在所有泵组配置中都给出了余量。







